Your Rural Lifestyle Awaits
10 Worland Street, Winchelsea VIC 3241
- 4
- 2
- 6
- 6.06 Hectares
SOLD
Nestled in the ‘gateway to the Otways’ and just half an hour to the coastline, 10 Worland Street Winchelsea offers endless opportunities to embrace a semi-rural lifestyle as a working farm or spacious weekender.
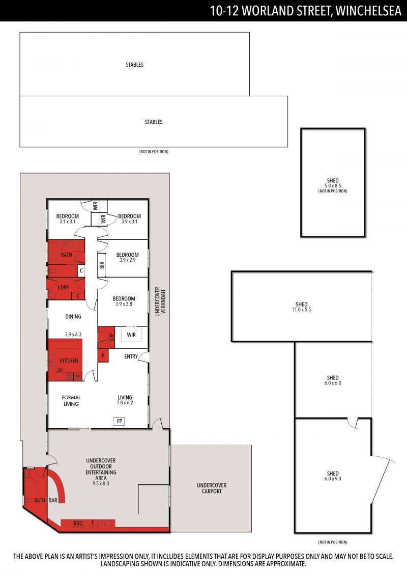
Set on approx. 15 acres with easy access to the Princes Highway this property is established with 9 quality fenced paddocks, 2 expansive stable facilities, over 190m2 of lockable shedding (some with concrete flooring) and a 4 bedroom homestead with room for lots of visitors.
White timber pale fencing creates an impressive entrance, extending the length of the long tree-line driveway. As you catch sight of the homestead with its signature country-style wrap around verandah, you will feel a warm welcome and feel instantly at home. Inside the spacious home has room for a big family or those who like to entertain, with a sprawling living area with cosy wood fire heater. Through a sliding door you will discover a huge undercover outdoor entertaining area complete with built-in outdoor kitchen and BBQ, bar, and a bathroom – perfect for large parties and events, no need for a marquee!
The light and bright kitchen inside the home overlooks a dining zone with further sliding doors opening onto the verandah and with outlooks across the property. The 4 large bedrooms have built in robes, the master with an extensive walk-in-robe, with a family-sized bathroom nearby.
Other property features include: town water, electric fencing, evaporative cooling, wood fire, a double undercover carport, established house gardens, mature trees, built in playground equipment.
Perfectly positioned moments from the centre of Winchelsea, only 20 minutes to Colac, 30 minutes to Waurn Ponds and 90 minutes to Melbourne, 10-12 Worland St is the rural opportunity you’ve been looking for.
Set on approx. 15 acres with easy access to the Princes Highway this property is established with 9 quality fenced paddocks, 2 expansive stable facilities, over 190m2 of lockable shedding (some with concrete flooring) and a 4 bedroom homestead with room for lots of visitors.
White timber pale fencing creates an impressive entrance, extending the length of the long tree-line driveway. As you catch sight of the homestead with its signature country-style wrap around verandah, you will feel a warm welcome and feel instantly at home. Inside the spacious home has room for a big family or those who like to entertain, with a sprawling living area with cosy wood fire heater. Through a sliding door you will discover a huge undercover outdoor entertaining area complete with built-in outdoor kitchen and BBQ, bar, and a bathroom – perfect for large parties and events, no need for a marquee!
The light and bright kitchen inside the home overlooks a dining zone with further sliding doors opening onto the verandah and with outlooks across the property. The 4 large bedrooms have built in robes, the master with an extensive walk-in-robe, with a family-sized bathroom nearby.
Other property features include: town water, electric fencing, evaporative cooling, wood fire, a double undercover carport, established house gardens, mature trees, built in playground equipment.
Perfectly positioned moments from the centre of Winchelsea, only 20 minutes to Colac, 30 minutes to Waurn Ponds and 90 minutes to Melbourne, 10-12 Worland St is the rural opportunity you’ve been looking for.
Read More
Agent Details
Inspection Times
Auction
Sat 16 Jul, 2:00pm
Property Information
- Type Residential Sale
- Price : Undisclosed
- State VIC
- Suburb Winchelsea
- Property Type House
- Land Size 6.06 Hectares